TOP 新米★サラリーマン大家さん日記 X(旧Twitter)アカウント YouTubeチャンネル
18件目へ ★19件目 21件目へ
★①引渡し直後 ②解体・造作 ③完成プロセス ④リフォーム前と後・比較
19件目、物件詳細 ①引渡し直後・ゴミ片付け
| 2014年10月 購入 | |||||||||||||||||||||||||
|
|||||||||||||||||||||||||
|
|||||||||||||||||||||||||
|
|
|
||||||||||||||||||||||||||||||||||||||||
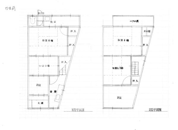
| 外観・間取り | |
![]() |
|
購入手続き スケジュール 【2014 10/11】 室内の内覧 【2014 10/11】 200万希望⇒170万で買付け 【2014 10/11】 売主さん、買付け承諾 【2014 10/18】 170万円にて契約・決済同日完了 【2014 10/23】 家電・金属類の処分 【2014 11/21】 リフォームプラン打ち合わせ 【2014 11/21】 大量のゴミの片付け開始 【2014 12/06】 ゴミの処分完了 【2014 12/15】 リフォームプラン打ち合わせ 【2015 02/17】 リフォーム見積り 【2015 02/20】 リフォームプラン変更・決定 【2015 02/26】 リフォーム開始 【2015 04/07】 リフォーム完成 【2015 03/20】 レインズ登録、入居者募集開始 【2016 10/27】 入居申込み 【2016 11/01】 入居日 |
リフォーム内容 リフォーム代金 |
2009年9月の7件目 ~ 2014年8月の18件目まで、ずっと競売不動産を落札し、大家さんをやってきました。 ここ最近の競売市場の高値の落札をみて、通常の売買でも物件を探し始めました。 購入する順番は前後するのですが、21件目に購入することとなる一戸建てをネットで見つけ、 内覧し購入することにしました。 一般に公開されているネット情報で見つけたのですが、その物件を仲介会社の担当さんが 21件目の契約完了時に、 まだどこにもだしてない物件があるのですが、興味ありますか?と言っていただいたので、 21件目の不動産の契約が終わってからすぐに一緒に現地に見に行きました。 ※不動産取引では、契約と決済日は別の日にすることが多く、 契約は手付け金を支払い物件購入の意思を書面で交わすことで、 決済とは、売買代金の全額を支払い所有権を買主である私に名義を変え、所有者となります。 物件に向かう途中で口頭にて条件を聞いたのですがこの段階で購入を決めていました。 現地に行くと、室内はかなりの荒れようでゴミや動産が競売物件顔負けで満載でしたが、 そのかわり、競売物件よりかなり激安で購入することができましたので、大満足な物件です。 購入条件は現状有姿ということで、室内にあるゴミや荷物もそのままです。 通常売買の場合、室内は空にしてから取引するのですが、売主さんにも事情がいろいろとあります。 21件目を契約した1週間後に、こちらの物件は契約・決済同時となり、こちらの方を先に購入することになりました。 |
| 引渡し直後の状態 1階 | ||
![]() |
![]() |
|
![]() |
![]() |
|
![]() |
||
![]() |
![]() |
![]() |
![]() |
![]() |
|
![]() |
||
| 引渡し直後の状態 2階 | ||
![]() |
||
![]() |
![]() |
|
![]() |
![]() |
|
![]() |
||
![]() |
![]() |
|
売主さんのご両親が以前に住んでいて、相続により息子さんが手に入れ、ご両親が住んでいたままの荷物がそのままです。 私も内覧時に、多いな~。ぐらいの感覚で何度かゴミ屋敷の片付けをしていたので問題はないと思ったのですが、 写真ではわかりづらいのですが、押入れなどの収納にもパンパンにつまっていました。 |
| ゴミの片付け風 | ||
![]() |
![]() |
![]() |
![]() |
![]() |
![]() |
![]() |
![]() |
|
![]() |
![]() |
![]() |
![]() |
![]() |
![]() |
![]() |
![]() |
|
今回は、結構な荷物の量があり、処分・運搬費用で178,200円 かかりました。 最初は、自分で処分しようかとも考えゴミ袋をもって片付けをやってみたのですが、数時間であきらめました。 室内が広いため、ざっと見た印象より、出るわ出るわ荷物があふれていました。 道路も狭いため、軽トラックしか入れず、少しずつゴミを運び出すため、ゴミの処理だけで1週間かかりました。 |
| ゴミ処分後 | ||
![]() |
![]() |
|
![]() |
![]() |
![]() |
![]() |
![]() |
![]() |
![]() |
![]() |
![]() |
ゴミ処分後の室内です。 あれだけのゴミを処分したらなんだかスッキリとした部屋になりました。 ただ、汚れと老朽化が激しいので大規模なリフォームとなりそうです。 |
| ごみ屋敷のお片付け | ||
| 引渡し直後 | 片付け中 | ゴミ処分完了後 |
![]() |
||
![]() |
![]() |
![]() |
![]() |
![]() |
![]() |
![]() |
![]() |
|
TOPへ ページ上へ戻る X(旧Twitter)アカウント YouTubeチャンネル
18件目へ ★19件目 21件目へ
★①引渡し直後 ②解体・造作 ③完成プロセス ④リフォーム前と後・比較
Copyright(C)2005 めざせ、不動産投資で月々20万のキャッシュフロー!All right reserved