TOP  新米★サラリーマン大家さん日記  X(旧Twitter)アカウント  YouTubeチャンネル
21件目へ ★22件目
★①引渡し直後 ②完成プロセス1階 ③完成プロセス2階 ④リノベーション前後比較


22件目、物件詳細 ①引渡し直後と間取りプラン

2016年11月 購入
通常売買不動産 / 連棟式住宅
所在地 大阪市阿倍野区
交通 地下鉄御堂筋線  昭和町駅
間取り 4K  専有面積 約46,15㎡ 
構造 木造瓦葺2階建て
築年月日 昭和49年9月 

 購入総額  4,022,089円
 年間収入  816,000円
 年間支出  13,500円
 年間利益  802,500円
 純利回り  19,95%
 購入費用
 物件価格 1,100,000円
リフォーム費用 2,650,000円
固・都税清算金 5,689円
税金(取得税等) 131,210円
火災保険(初年度) 0円
手続き費用 135,190円
購入総額  4,022,089円
年間収入
家賃 816,000円
管理費・共益費 なし
水道代 なし
駐車場代 なし
 年間収入   816,000円

年間支出
管理費・修繕積立金
固定資産税等   13,500円
火災保険
 その他  
 年間支出  13,500円


外観・間取り
 

購入手続き スケジュール

【2016 10/22】 業者さんより情報提供
【2016 10/24】 外観だけ現地にて確認⇒買付け
【2016 10/24】 すぐに連絡があり、交渉成立
【2016 10/29】 初めて、室内確認
【2016 10/31】 契約・決済同日
【2016 11/03】 職人さんと現地打ち合わせ
【2016 11/08】 権利書到着
【2016 11/15】 間取りプラン
【2016 11/21】 リフォームプラン決定
【2016 11/24】 リフォーム開始
【2017 01/31】 リフォーム完成
【2017 02/01】 入居者募集開始
【2017 02/21】 入居申込み
【2017 03/15】 入居開始

リフォーム内容

屋根穴あき
ベランダ崩壊
すべてを作り直す

フルリノベーション


リフォーム代金  2,650,000円
2016年 11月に22件目を通常の売買にて手に入れました。

19件目と21件目を紹介してくれた、懇意の営業さんより 10月22日 に連絡があり、10/24 にその業者さんと現地を見に行ってきました。


事前に室内の写真をいただき見たのですが、かなり老朽化しており、というより崩壊に近い状態でした。
案内の当日も鍵が手配できないということで外観だけの確認しかできませんが、
その場で買付けを書いちゃいました。


競売不動産での落札購入の場合、裁判所の資料にある室内の写真のみで入札するかを判断していますので、
事前に室内を見なくても問題はなく、むしろ外観や物件周辺の状況確認の方が重要だったりします・

いつも室内を確認することなく、競売で物件を購入しています。


そして、そのまま10/31(月) に契約・決済を同日での購入が決まりました。

早いです。19件目と21件目の購入の時もスピード決断しました。


老朽化したり、ゴミ屋敷だったりの免疫(経験)がついていたこともあり、
かなり安い価格での値段交渉ができる案件だったのですぐに買付けをいれ、購入することができました。

今回はそれ以上でのスピード購入となりました。


室内の確認は、決済後になるのかな。。。と思っていたのですが決済2日前の10/29(土)に鍵の手配ができたということで、
リフォームの職人さんを連れて室内をみることができました。



案内時の室内

決済前の室内案内の時は家具などのゴミがいっぱいでした。

また、ゴミ屋敷か。。。
と思ったのですが、家具などの荷物とゴミは売り主さんが撤去してくれるそうなのでひと安心です。

競売不動産では、残置物といわれる室内に残っている荷物やゴミは落札者で処分することが多くあります。
通常の売買の場合は、売り主さんがきれいに撤去し、からっぽの状態で引き渡すのが通例です。


競売不動産でたくさんの物件を手に入れてきました。
いろんなゴミ屋敷や古い物件、老朽化した室内などなど
見てきて購入してきましたが、今までで一番損傷が激しいかもしれません。

屋根には大きな穴が空き、室内は雨漏りで腐り始めていますし、
ベランダは完全に崩壊していますし、
1階のトイレの屋根も穴が開いていますし、
裏庭にでっかいユニットバスがドカンとおいてありますし、

これは、なかなか購入する人はいないと思います。


ゴミ撤去後 1階


2階


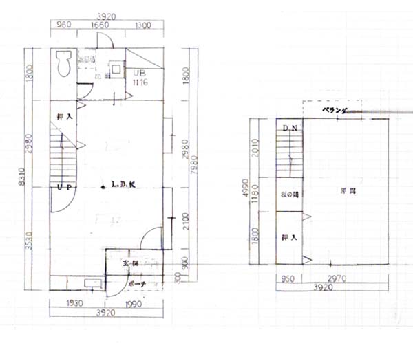
最初の間取りプラン
最初の打ち合わせで出た間取りプランです。
広めの1階をリビングと部屋に分けるプランですが、予算オーバーの見積もりだったため、
壁の造作や建具の新調などの費用を少しでも安くするために変更となりました。

階段の位置は変えられないのと水回りの配置は奥にしかできない構造なので、
1階に部屋を作ってもトイレや洗面などの日常生活動線上に1階の部屋を通らなくてはいけないため

部屋としては使いずらい生活同線になるため、変更することにしました。。


最終、決定間取りプラン
 1階を広いリビングにすることでリフォーム費用を少し安く抑えることができました。
物件全体に少しゆとりのある広さだったため、1LDKより2LDKにしたかったのですが仕方がありません。

TOPへ  ページ上へ戻る  X(旧Twitter)アカウント  YouTubeチャンネル
21件目へ ★22件目
★①引渡し直後 ②完成プロセス1階 ③完成プロセス2階 ④リノベーション前後比較

Copyright(C)2005 めざせ、不動産投資で月々20万のキャッシュフロー!All right reserved