不動産投資により、サラリーマンが兼業・副業で家賃収入を得てお金持ち大家さんを目指すサイトです。

TOP | サイトマップ | プロジェクト
めざせ、不動産投資で月々20万のキャッシュフロー

めざせ、不動産投資で月々20万のキャッシュフローTOPへ  ⇒  19件目、@物件の詳細と間取りプラン


所有不動産一覧 │ 全物件の収支一覧 │ 総純利益と回収率 │ タイムライン │ 年収公開
@詳細と間取り │ A引渡直後 │ B処分と改装 │ C水回りと電気 │ DLDK │ E1階と2階

19件目、@物件の詳細と間取りプラン

2009年9月の7件目 〜 2014年8月の18件目まで、ずっと競売不動産を落札し、大家さんをやってきました。

ここ最近の競売市場の高値の落札をみて、通常の売買でも物件を探し始めました。すると21件目に購入することとなる一戸建てを見つけ、内覧し購入することにしました。

一般の売買ですので仲介会社さんがいます。その担当さんが21件目契約完了時に、まだどこにもだしてない物件があるのですが、どうですか?と言っていただいたので、21件目契約が終わってからすぐに一緒に現地に見に行きました。

というより、口頭で条件を聞いた段階で購入を決めていました。

現地に行くと、写真の通り室内はかなりの荒れようでゴミや動産が競売顔負けで満載でした。

そのかわり、競売も顔負けの激安で購入することができましたので、大満足な物件です。

21件目を契約した1週間後に、こちらの物件は契約・決済同時となり、こちらの方を先に購入することになりました。



購入手続き スケジュール
【2014 10/11】 室内の内覧
【2014 10/11】 売主さん200万希望 ⇒ 170万で買付け
【2014 10/11】 売主さん、買付け承諾
【2014 10/18】 170万円にて契約・決済同日完了
【2014 10/23】 家電・金属類の処分
【2014 11/21】 リフォームプラン打ち合わせ
【2014 11/21】 大量のゴミの片付け開始
【2014 12/06】 ゴミの処分完了
【2014 12/15】 リフォームプラン打ち合わせ
【2015 02/17】 リフォーム見積り
【2015 02/20】 リフォームプラン変更・決定
【2015 02/26】 リフォーム開始
【2015 04/07】 リフォーム完成

【2015 03/20】 レインズ登録、入居者募集開始
【2016 10/27】 入居申込み
【2016 11/01】 入居日


【2014年 10月】購入
通常売買不動産 / 一戸建て
物件価格 170万円
所在地 大阪市西淀川区
交通 阪神本線 千船駅
間取り 5K 専有面積 約76.37u
構造 木造瓦葺き2階建て
築年月日 昭和34年2月
購入総額
物件価格 \1,700,000
リフォーム費用 \1,507,601
ゴミ撤去費用 \178,200
税金(登録免許税・取得税) \95,822
火災保険(1年間) \0
仲介・司法書士手数料 \151,200
固・都税清算金 \7,023
年間収入
家賃 \744,000
共益費 込み
水道代 込み
駐車場代 \0
年間支出
共用部分電気代 \0
水道代 \0
公租租税
  (固定資産税)
  (都市計画税)
\15,200
購入総額 年間収入 年間支出 差額利益 純利回り
¥3,645,546 ¥744,000 ¥15,200 ¥0 19.99%


外観・間取り

















引渡後の現状間取り

 お風呂もない、玄関横と2階への階段の手前にキッチンと変な間取りです。
築50年以上の古い一戸建てです。
部屋も小さく分かれており、生活導線が不思議な感じですね。
 ただ、昔の畳は1帖が大きく部屋はとっても広く開放感がありました。

最初の間取りプラン

 最初に考えたリフォームプランです。
トイレをキッチンのところに移動すると2階からのアクセスもよく、細かく区切られていた1階の部屋をすべて広いLDKへ変え、キッチンとお風呂や洗面所を奥にまとめることで生活しやすい、ベストな間取りだと思います。

 2階は、現状のままでも十分な間取りですので壁や畳の交換など表面的なリフォームできれいになります。

 問題はただひとつ。1階の水回りの設置と移動など排水管やガス管などでお金がかかり過ぎ予算オーバーでした。

リフォーム決定間取り




予算を安くするために考え、決定したのが上の間取りでこちらで決定し、リフォームが始まりました。


予算を圧縮するため、1階奥の和室をそのまま使ったプランとなりました。


現状の傷みが激しかったこともあり、解体や新しくお風呂を設置するために土台の作成など下準備の工事に時間がかかっている間に何度か職人さんと現場で打ち合わせする中で1階は和室よりリビングのいいね。


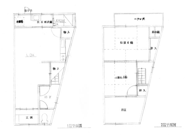
となり、最終的には下記の間取りでリフォーム完成となりました。


中途半端に和室を残すより、こちらの広いリビングの方がいいと思いましたので満足な仕上がりでした。


完成間取り
 

@詳細と間取り │ A引渡直後 │ B処分と改装 │ C水回りと電気 │ DLDK │ E1階と2階
所有不動産一覧 │ 全物件の収支一覧 │ 総純利益と回収率 │ タイムライン │ 年収公開

―サイトマップ―
1.私の所有不動産
  └全物件収支一覧

4.不動産投資への考え方

7.投資手法・戦略を比較する

10.競売不動産
   ├知識手続きマニュアル
   └実践ノウハウ

13.不動産の知識

16.メディア取材、掲載誌

番外編.アフィリエイトでお金を稼ぐ
2.初めての方へ


5.お金持ち大家さん成功のこつ

8.不動産投資を実践する

11.一棟ものアパート経営のこつ



14.よくある質問、Q&A

3.お金の本質を知り、お金持ちになる


6.成功者、大家さんから学ぶ

9.通常取引・売買で購入する

12.満室経営でお金持ちになる
   ├入居者募集のこつで空室対策
   └入居者満足度を上げ退去防ぐ

15.実録!ノンフィクション物語
ページの一番上へ


サイトのカテゴリー

1.私の所有不動産

2.初めての方へ

3.お金の本質を知り、お金持ちになる

4.不動産投資への考え方

5.金持ち大家さん成功のこつ

6.成功者、大家さんから学ぶ

7.投資手法・戦略を比較する

8.不動産投資を実践する

9.通常取引・売買で購入する

10.競売不動産

11.一棟アパート経営のこつ

12.満室経営で金持ちになる

13.不動産の知識

14.よくある質問、Q&A

15.実録ノンフィクション物語

16.メディア取材、掲載誌

番外編
アフィリエイトでお金を稼ぐ


メールフォーム
サイト運営者へのお問い合わせ、ご意見、取材などを受け付けております。


姉妹サイト

新米★サラリーマン大家さん日記
私のブログです。日々の出来事などを書いてます。
http://black.ap.teacup.com/lefty/


副業・兼業でお金持ち大家さんになる
不動産投資の副業でお金持ちになるためのサイトです。
http://ooya.investment-it.com/


不動産競売物件を手に入れる
競売不動産についての実践的な実務、知識を紹介しています。
http://keibai.blog108.fc2.com/


金持ち父さんを目指す−お金と自由を手に入れる
アフィリエイトと不動産投資でお金持ちを目指すサイトです。
http://okanecash.blog77.fc2.com/


副業でアパート経営・マンション投資
実践で学んだ投資手法を紹介しています。
http://blog.livedoor.jp/lefty0018/

当サイトはホームページ・ビルダーで製作し、独自ドメインムームードメイン、レンタルサーバーロリポップを使用しています。
Copyright(C)2005 めざせ、不動産投資で月々20万のキャッシュフロー!All right reserved