不動産投資により、サラリーマンが兼業・副業で家賃収入を得てお金持ち大家さんを目指すサイトです。

TOP | サイトマップ | プロジェクト
めざせ、不動産投資で月々20万のキャッシュフロー

めざせ、不動産投資で月々20万のキャッシュフローTOPへ  ⇒  22件目、物件の詳細


所有不動産一覧 │ 全物件の収支一覧 │ 総純利益と回収率 │ タイムライン │ 年収公開
物件の詳細と間取りプラン │ 案内時とゴミ撤去後 │ リノベーション前後の比較

22件目、物件の詳細

2016年 11月に22件目を通常の売買にて手に入れました。

19件目と21件目を紹介してくれた、懇意の営業さんより 10月22日 連絡があり、10/24 にその業者さんと現地を見に行ってきました。


かなり老朽化しており、事前に室内の写真をいただいていましたが、この日は鍵が手配できないということで外観だけの確認しかできませんが、その場で買付けを書いちゃいました。

この辺りは、競売不動産での落札購入の場合、事前に室内は見れませんので抵抗はありません。

いつも室内を確認することなく、競売で物件を購入しています。


そして、そのまま10/31(月) に契約・決済を同日での購入が決まりました。

早いです。19件目と21件目の購入の時もスピード決断しました。


老朽化したり、ゴミ屋敷だったりの免疫(経験)がついていたこともあり、かなり安い価格での値段交渉ができる案件だったのですぐに買付けをいれ、購入することができました。

今回はそれ以上でのスピード購入となりました。


室内の確認は、決済後になるのかな。。。と思っていたのですが決済2日前の10/29(土)に鍵の手配ができたということで、リフォームの職人さんを連れて室内をみることができました。


購入手続き スケジュール
【2016 10/22】 業者さんより情報提供
【2016 10/24】 外観だけ現地にて確認 ⇒ 値段交渉ありの買付け
【2016 10/24】 すぐに業者さんより連絡があり、交渉成立
【2016 10/29】 現地、室内確認
【2016 10/31】 契約・決済同日
【2016 11/03】 職人さんと現地採寸と打ち合わせ
【2016 11/08】 権利書到着
【2016 11/15】 間取りプラン
【2016 11/21】 リフォームプラン決定
【2016 11/24】 リフォーム開始
【2017 01/31】 リフォーム完成
【2017 02/01】 入居者募集開始
【2017 02/21】 入居申込み
【2017 03/15】 入居開始



【2016年 10月】購入
通常売買不動産 / 一戸建て
物件価格 110万円
所在地 大阪市阿倍野区
交通 地下鉄御堂筋線 昭和町駅
間取り 4K 専有面積 約46.15u
構造 木造瓦葺き2階建て
築年月日 不詳 昭和33年6月 以前
購入総額
物件価格 \1,100,000
リフォーム費用 \2,650,000
ローン諸経費 \0
税金(登録免許税・取得税) \131,210
火災保険(1年間) \0
手数料 \135,190
固・都税清算金 \5,689
年間収入
家賃 \68,000
共益費 込み
水道代 込み
駐車場代 \0
年間支出
共用部分電気代 \0
水道代 \0
公租租税
  (固定資産税)
  (都市計画税)
\13,500
購入総額 年間収入 年間支出 差額利益 純利回り
¥4,022,089 ¥816,000 ¥13,500 ¥802,500 19.95%


外観・間取り








引渡直後の現状間取り


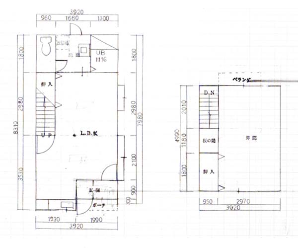
最初の案 間取りプラン
 最初の打ち合わせで出た間取りプランです。
広めの1階をリビングと部屋に分けるプランですが、予算オーバーの見積もりだったため、壁の造作や建具の新調などの費用を少しでも安くするために変更となりました。

階段の位置と水回りの配置は奥にしかできない構造なので、1階に部屋を作ってもトイレや洗面などの日常生活動線上に1階の部屋を通らなくてはいけないため

部屋としては使いずらい構造のために変更することになりました。


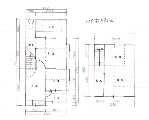
最終 決定間取りプラン


 1階を広いリビングにすることでリフォーム費用を少し安く抑えることができました。
ある程度広さがある部屋でしたので、1LDKより2LDKにしたかったのですが仕方がありません。

室内をきれいにリノベーションしますが、入居者ターゲットは若い人ではなく、40歳以上の家族を狙いたいのですがこの間取りが限界ですね。
 

物件の詳細と間取りプラン │ 案内時とゴミ撤去後 │ リノベーション前後の比較
所有不動産一覧 │ 全物件の収支一覧 │ 総純利益と回収率 │ タイムライン │ 年収公開

―サイトマップ―
1.私の所有不動産
  └全物件収支一覧

4.不動産投資への考え方

7.投資手法・戦略を比較する

10.競売不動産
   ├知識手続きマニュアル
   └実践ノウハウ

13.不動産の知識

16.メディア取材、掲載誌

番外編.アフィリエイトでお金を稼ぐ
2.初めての方へ


5.お金持ち大家さん成功のこつ

8.不動産投資を実践する

11.一棟ものアパート経営のこつ



14.よくある質問、Q&A

3.お金の本質を知り、お金持ちになる


6.成功者、大家さんから学ぶ

9.通常取引・売買で購入する

12.満室経営でお金持ちになる
   ├入居者募集のこつで空室対策
   └入居者満足度を上げ退去防ぐ

15.実録!ノンフィクション物語
ページの一番上へ


サイトのカテゴリー

1.私の所有不動産

2.初めての方へ

3.お金の本質を知り、お金持ちになる

4.不動産投資への考え方

5.金持ち大家さん成功のこつ

6.成功者、大家さんから学ぶ

7.投資手法・戦略を比較する

8.不動産投資を実践する

9.通常取引・売買で購入する

10.競売不動産

11.一棟アパート経営のこつ

12.満室経営で金持ちになる

13.不動産の知識

14.よくある質問、Q&A

15.実録ノンフィクション物語

16.メディア取材、掲載誌

番外編
アフィリエイトでお金を稼ぐ


メールフォーム
サイト運営者へのお問い合わせ、ご意見、取材などを受け付けております。


姉妹サイト

新米★サラリーマン大家さん日記
私のブログです。日々の出来事などを書いてます。
http://black.ap.teacup.com/lefty/


副業・兼業でお金持ち大家さんになる
不動産投資の副業でお金持ちになるためのサイトです。
http://ooya.investment-it.com/


不動産競売物件を手に入れる
競売不動産についての実践的な実務、知識を紹介しています。
http://keibai.blog108.fc2.com/


金持ち父さんを目指す−お金と自由を手に入れる
アフィリエイトと不動産投資でお金持ちを目指すサイトです。
http://okanecash.blog77.fc2.com/


副業でアパート経営・マンション投資
実践で学んだ投資手法を紹介しています。
http://blog.livedoor.jp/lefty0018/

当サイトはホームページ・ビルダーで製作し、独自ドメインムームードメイン、レンタルサーバーロリポップを使用しています。
Copyright(C)2005 めざせ、不動産投資で月々20万のキャッシュフロー!All right reserved